Free Fold H580-650mm, 6 - 12.2kg.- HAFELE

393,50 Lei
In stoc

Durata de livrare: 3 - 4 zile

Limita stoc
Adauga in cos
Cod Produs: 372.37.533 Ai nevoie de ajutor? 0728 116 000
Adauga la Favorite Cere informatii
  • Descriere
  • Review-uri (0)
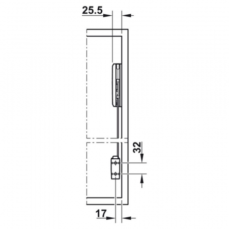
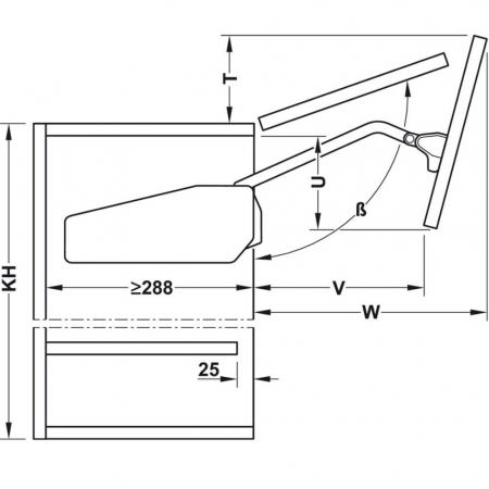
Mecanism Free Fold H580-650mm, 6 - 12.2kg.. Setul contine mecanismele, bratele si capacele. Nu contine balamalele.
Informatii conformitate produs
Daca doresti sa iti exprimi parerea despre acest produs poti adauga un review.

Review-ul a fost trimis cu succes.

Compara produse

Trebuie sa mai adaugi cel putin un produs pentru a compara produse.

A fost adaugat la favorite!

A fost sters din favorite!